














Referenz Nr.
Immobilien Magden, ÜBERBAUUNG ?EAGLE? - NUR NOCH 2 WOHNUNGEN
-
Wohnung
Objekttyp
-
3.5
Zimmer
-
980'000 CHF
Kaufpreis
Beschreibung
Die Überbauung ?Eagle? liegt sehr zentral und doch ruhig in der beliebten Wohngemeinde Magden. Kindergarten, Schule, Einkaufsmöglichkeiten und öffentliche Verkehrsmittel sind in wenigen Schritten erreichbar.
Diese Kombination aus zentrumsnahem Wohnen und der kurzen Distanz zu den Naherholungsgebieten, macht den Standort zu einem ganz besonderen Wohngebiet.
Durch die gute Erschliessung mit dem öffentlichen Verkehr sowie dem nahegelegenen Autobahnanschluss zur A3 sind die grösseren Zentren Basel und Zürich gut und schnell erreichbar.
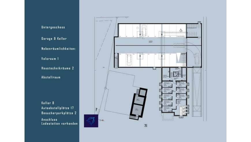
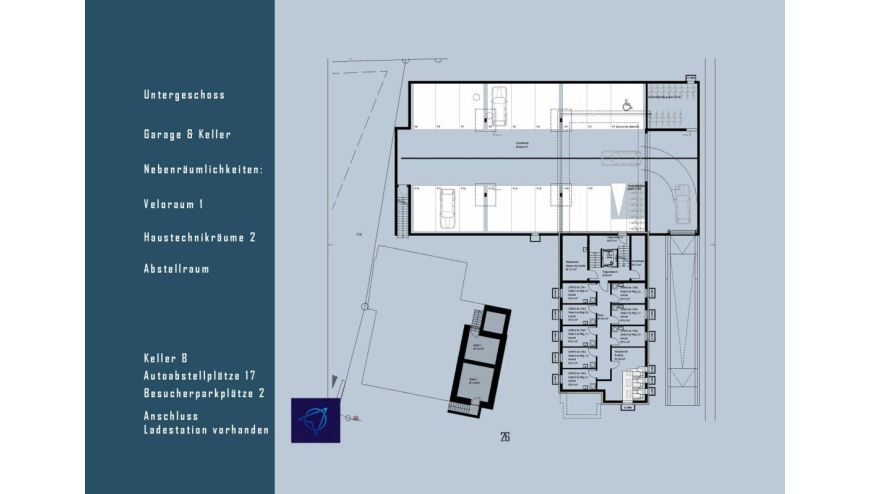
Das projektierte Mehrfamilienhaus umfasst insgesamt 8 Wohnungen und eine Tiefgarage mit 17 Autoeinstellplätzen.
Hier erwartet Sie eine ländliche und zeitlose Idylle mitten im Dorf und doch im Grünen.
Highlights der Wohnungen:
? Zentrale und ruhige Lage
? Optimale Raumnutzung - maximaler Wohnkomfort
? Moderner, hochwertiger Innenausbau
? Rollstuhlgerecht
? Lift
? Luft-Wasser Wärmepumpe
? Bodenheizung
? Niedrige Nebenkosten
? Genügend Parkmöglichkeiten in der Tiefgarage
? Anschluss für Ladestation
? Separater Kellerraum
? Eigene Waschmaschine und Tumbler in der Wohnung
? Attraktives Preis-Leistungs-Verhältnis
? Grosszügige Budgetpositionen ermöglichen den
Ausbau nach Ihren Wünschen
Objekte
- 3.5-Zimmer Gartenwohnung, Wohnfläche ca.107 m²,
Badewanne/WC und DU/WC, Sitzplatz ca. 11 m², 1 Keller,
CHF 980'000.00 - 4.5-Zimmer Etagenwohnung, 1.OG,
Wohnfläche ca. 134 m²
Badewanne/WC und DU/WC, Balkon ca. 12 m², 1 Keller,
CHF 1'175'000.00
Die Wohnungen eignen sich hervorragend für Paare oder Familien mit Kindern, die eine moderne Wohnung in stadtnaher Umgebung schätzen und suchen. Sowie für ältere Personen, die von der altersgerechten Bauweise profitieren können.
Haben wir Ihr Interesse geweckt? Gerne stellen wir Ihnen dieses Projekt auch persönlich vor.
Wir freuen uns auf Ihre Kontaktaufnahme.
Ausstattungsliste
- Garage
- Lift
- Minergiebauweise
- Rollstuhlgeeignet
Haben Sie Fragen? Kontaktieren Sie uns

Carlo Rinaudo
Telefon: 0793913858
E-Mail: carlo.rinaudo@rinaudo-kiss.ch