

















Referenz Nr.
Immobilien Frick, Zeitgenössisches Wohnen in historischem Haus an bester Lage
-
Gebäude
Objekttyp
-
6
Zimmer
-
165 m2
Wohnfläche ca.
-
1'390'000 CHF
Kaufpreis
Beschreibung
Zeitgenössisches Wohnen in historischem Haus
an bester Lage
In der ruhigen Dorfkernzone von Frick, zentral im historischen Hinterdorf, liegt dieses besondere 6-Zimmer-Einfamilienhaus. Das ursprüngliche Bauernhaus entstand im 18. Jahrhundert und liegt zurückversetzt in der zweiten Reihe der Quartierstrasse. Das Objekt am Kirchmattweg 12 zeichnet sich durch einen idyllischen Garten und eine durchgrünte Nachbarschaft aus. Das Haus steht unter Volumenschutz und wurde 2024 umfassend saniert. In wenigen Gehminuten Entfernung befindet sich alles für den täglichen Bedarf wie Einkaufen, Schulen & Kindergarten, öffentliche Verkehrsmittel sowie Freizeitmöglichkeiten, Grünflächen und Spielplätze zum Verweilen.
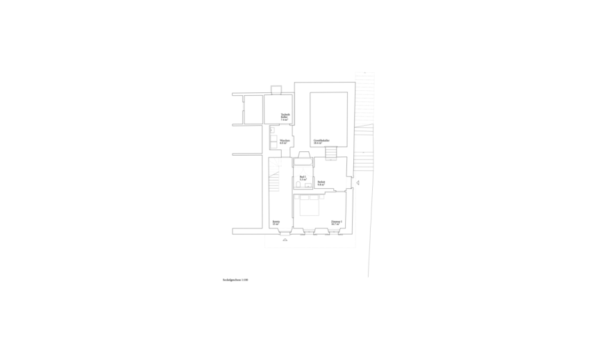
Über drei Etagen erstreckt sich eine Wohnfläche von rund 160 m2. Im Erdgeschoss betritt man das Haus über einen grosszügigen Eingangsbereich. In diesem Geschoss befindet sich ein Zimmer, welches sich auch gut als Studio/Atelier eignet und über einen separaten Seiteneingang erreicht werden kann. Des Weiteren finden Sie dort ein besonderes Bad mit Badewanne, ein Reduit, die Waschküche sowie ein Keller- und Technikraum.
Ein Gewölbekeller, welcher nach Wunsch saniert und ausgebaut werden kann, rundet das Erdgeschoss ab.
Im mittleren Geschoss befindet sich ein offener Wohn-Essbereich mit Cheminéeofen sowie eine hochwertige Küche doppelter Raumhöhe und Blickbezug ins Dachgeschoss. Der Kochbereich ist zum Garten hin grosszügig verglast. Hier befindet sich ein leicht überdachter Aussensitzplatz mit Blick in den idyllischen Garten.
Im ausgebauten Dachgeschoss befindet sich eine helle Diele, die vielfältig genutzt werden kann. Angrenzend daran verteilen sich drei Schlafzimmer sowie ein Badezimmer mit Duschbereich, welcher über das oberste Giebelfenster belichtet wird. Über eine Leiter erreicht man zu guter Letzt den Spitzboden. Dieser kann beispielsweise als Gästenische oder ganz konventionell als Dachboden genutzt werden.
Mit grösster Sorgfalt wurde das Haus 2024 umfassend saniert. Alle haustechnischen Installationen wurden neu erstellt und sämtliche Oberflächen erneuert. Das Haus wird mit einer Luft-Wasser-Wärmepumpe beheizt, die Wärmeabgabe erfolgt in allen Geschossen über eine Fussbodenheizung. Die gut erhaltenen Bruchsteinmauern wurden mit einem hochwertigen Dämmputz energetisch ertüchtigt, sämtliche Fenster mit 3-fach-Isolierverglasungen in Holz ersetzt. Das Dach wurde ausgebaut und gedämmt, Anschlüsse für eine künftige PV-Anlage sind vorhanden.
Haben wir Ihr Interesse geweckt?
Lassen Sie sich von dieser aussergewöhnlichen Liegenschaft begeistern.
Wir freuen uns auf Ihre Kontaktaufnahme!
Fotos: Federico Farinatti
Kontakt:
Pesenti Schütz Architektur
Nicole Schütz
info@pesentischuetz.ch
+41 79 375 08 83
Ausstattungsliste
- Cheminée
- Kinderfreundlich
- Parkplatz
Haben Sie Fragen? Kontaktieren Sie uns

Telefon:
E-Mail: info@pesentischuetz.ch